Project | Mantelzorgwoning Nieuwerkerk | Geldersche Houtbouw
Projecten / Mantelzorgwoning Nieuwerkerk

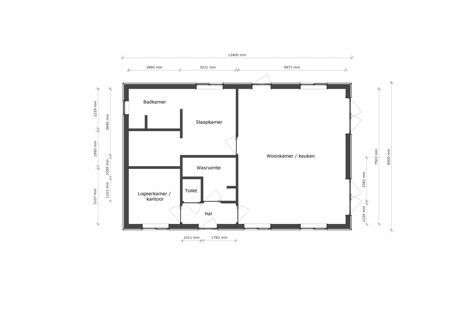
Mantelzorgwoning Nieuwerkerk

afbeeldingMantelzorgwoning Nieuwerkerk

Wij bouwen houten bijgebouwen op maat

Iedere houten mantelzorgwoning is uniek. Daarom zijn de projecten op deze website bedoeld ter inspiratie. Zoekt u iets landelijks of juist een mantelzorgwoning met een moderne uitstraling? Door onze ervaring met duizenden projecten ontwerpen we graag de houten mantelzorgwoning die precies bij u past. Verschillende stijlen zijn daarin mogelijk, bekijk gerust deze recente ontwerpen eens.

Wilt u weten hoe hoog de investering is voor een vakantiewoning naar uw wensen? Vul dan vrijblijvend het offerteformulier in of neem op een andere manier contact op. In het kort inventariseren we uw wensen en geven direct een indicatie.

Bezoek gerust onze showroom met verschillende gebouwen waaronder zelfs een houten woning. Daarnaast geven we u graag een rondleiding door onze moderne werkplaats waar we jaarlijks meer dan 300 houten gebouwen weten te realiseren!

Vraag offerte aan

Projectinformatie

Lengte
12.4 m
Breedte
8 m
Hoogte
5 m
Oppervlakte
89.3 m2
Dakmateriaal
Keramische dakpannen
Dakvorm
Symmetrisch zadeldak
Type
Mantelzorgwoning
Materiaal gevelbekleding
Verduurzaamd vuren

Prijsindicatie

Prijs van dit maatwerk project.

Basis

185.000

Comfort

220.000

Compleet

265.000

De prijzen zijn in euro's. Aan deze prijzen kunnen geen rechten worden ontleend.

Offerte aanvragen

Bent u enthousiast geworden en benieuwd wat Geldersche Houtbouw voor u kan betekenen? Vraag nu een vrijblijvende offerte aan!

Wij begrijpen dat het kiezen van het perfecte gebouw een belangrijke beslissing is, en we willen u graag helpen bij elke stap van het proces. Met onze jarenlange ervaring en vakmanschap zorgen we ervoor dat uw houten gebouw aan al uw wensen voldoet, of het nu gaat om extra opbergruimte, een gezellige buitenlounge of een multifunctionele werkruimte.

Laat ons weten wat uw ideeën zijn, en ons team staat klaar om een op maat gemaakte offerte voor u samen te stellen.

Showroom

Showroom

In onze showroom bent u van harte welkom! Hier vindt u verschillende houten gebouwen van een schuur met overkapping tot zelfs een complete houten woning! Wanneer u het fijn vindt om zomaar even rond te kijken komt u gewoon even langs. Wanneer u een afspraak maakt weten we zeker dat we de tijd hebben om u vrijblijvend op weg te helpen. Wilt u meer weten over de showroom? Bezoek dan onze pagina over de showroom.

Bezoek inplannen

Andere klanten bekeken ook

Wat zeggen klanten over ons

Geeft ruimte. Voor elkaar. Om te genieten.

Realistische visuals
Realistische visuals
Het eindresultaat is tekenend voor u.
3000+ gebouwen
3000+ gebouwen
Deze ervaring telt door in ieder project.
Hoge bouwsnelheid
Hoge bouwsnelheid
Moderne, gecontroleerde productie.
Hoge waardering
Hoge waardering
Een 9+ door meer dan 1000 klanten.